Golf Road, Deal, Kent, CT14 £725,000

7 3 3

7 Bedroom House  For Sale £725,000

Impressive Property

Arranged as Three Flats

Flats A & B have Two Bedrooms

Flat C Offers Three Bedrooms

Allocated Parking to Rear

No Onward Chain

Huge Amount of Potential

Close to Town Location

Ideal Investment

Three Separate EPCs

EPC Rating D

Council Tax Band A, Dover

Freehold

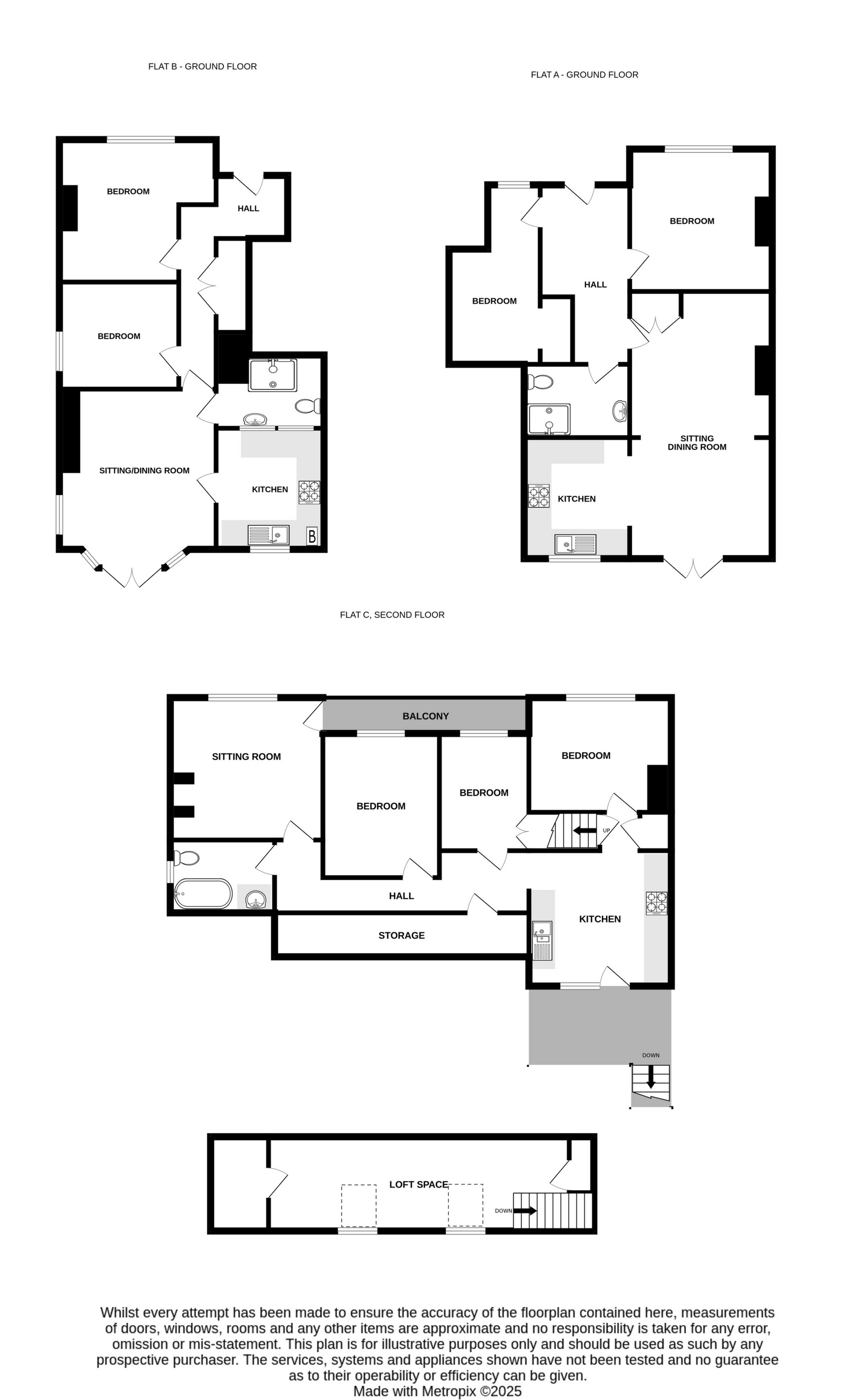
Jenkinson Estates are pleased to bring to the market this substantial property that is currently configured to provide three separate flats, situated in the town centre location of Golf Road, Deal. This investment opportunity comes to the market with no onward chain complications and really must be viewed. The property, as mentioned is separated into three flats; to the ground floor there are two flats, both offering two bedrooms, whilst the first floor offers a three-bedroom flat. Each have their own private entrance, kitchen, bath or shower rooms and outdoor space. There is also allocated parking to the rear and a single garage accessed via a shared driveway. Each flat also has their own council tax, all of which is "Band A", and have individual EPC's. There is also currently planning permission, on which has been granted for an "Erection of first floor rear extension to provide One bedroom flat" - DOV: 06/01012. When all the flats let, we have calculated the income to be in the region of £38,000.Increasing if the additional flat was added. All viewings are strictly by appointment via the Sole Agent Jenkinson Estates

Flat A
  
  
Entrance Hall
  
  
Bedroom
 10'7" x 11'8" (3.23m x 3.56m)
 
  
Bedroom
 13'1" max x 6'2" (3.99m x 1.88m)
 
  
Shower Room
 6'1" x 5'2" (1.85m x 1.57m)
 
  
Living room/Dining Room
 19'8" x 11'4" (5.99m x 3.45m)
 
  
Kitchen
 6'1" x 7'4" (1.85m x 2.24m)
 
  
Courtyard
  
  
Flat B
  
  
Entrance Hall
  
  
Bedroom
 11'8" max x 11'1" max (3.56m x 3.38m)
 
  
Bedroom
 7'6" x 8'9" (2.29m x 2.67m)
 
  
Living room
 12'9" x 10'9" (3.89m x 3.28m)
 
  
Kitchen
 7'4" x 7'3" (2.24m x 2.21m)
 
  
Shower Room
 7'3" x 3'8" (2.21m x 1.12m)
 
  
Courtyard
  
  
Flat C (First Floor)
  
  
Kitchen
 12'1" x 10'9" (3.68m x 3.28m)
 
  
Bedroom
 11'9" x 8'8" (3.58m x 2.64m)
 
  
Inner Hall
  
  
Bedroom
 7'0" x 5'5" (2.13m x 1.65m)
 
  
Bedroom
 8'6" x 7'9" (2.59m x 2.36m)
 
  
Bathroom
 8'5" x 4'8" (2.57m x 1.42m)
 
  
Living Room
 12'1" x 11'9" (3.68m x 3.58m)
 
  
Balcony
  
  
Parking For Four Cars
  
  
Garage
  
  
 
  
  
 
  
  

EPC for Golf Road, Deal, Kent, CT14

Energy
blank Current Potential
Energy
Current Potential

Location

Floor Plan

Floor Plan 1

Property Images

Photo 2
Photo 5
Photo 13
Photo 15
Photo 7
Photo 3
Photo 9
Photo 11
Photo 27
Photo 18
Photo 24
Photo 23
Photo 4
Photo 21
Photo 2
Photo 19
Photo 17
Photo 8
Photo 10
Photo 6
Photo 12
Photo 14
Photo 16
Photo 20
Photo 25
Photo 25
Photo 22

Arrange a Viewing

Arrange a Viewing

Mortgage Calculator

Mortgage Details

Results

Stamp duty calculation

See full breakdown

Total SDLT due

Below is a breakdown of how the total amount of SDLT was calculated

Up to £0k (Percentage rate 0 %)

Above £0k and up to £0k (Percentage rate 0 %)

Above £0k and up to £0k (Percentage rate 0 %)

Above £0k and up to £0k (Percentage rate 0 %)

Above £0k and up to £0m (Percentage rate 0 %)

Above £om (Percentage rate 0 %)

Please note: This is for illustrative purposes only. The above calculator should not be relied upon when making financial decisions. Please seek advice from a specialist financial provider.

Virtual Tour

IMPORTANT NOTICE

Descriptions of the property are subjective and are used in good faith as an opinion and NOT as a statement of fact. Please make further specific enquires to ensure that our descriptions are likely to match any expectations you may have of the property. We have not tested any services, systems or appliances at this property. We strongly recommend that all the information we provide be verified by you on inspection, and by your Surveyor and Conveyancer.

Fees

Refundable Holding deposit - Capped at 1 weeks rent

Security Deposit - Capped at 5 weeks rent for annual rental under £50,000, or 6 weeks rent for annual rental over £50,000

Rent - The agreed monthly rent

Changes to tenancy - Capped at £50 inc VAT

Early termination charge - Not exceeding the landlord’s financial losses

Late payment of rent - Interest of 3% above BoE base rate for each day the rent is late, once it is 14 days overdue

Replacement keys - Reasonable costs or give the tenant the option to purchase themselves.

Utilities, council tax, communication services, TV Licence etc - Tenants own responsibility unless otherwise stated in contract

Client Money Protection Scheme - Money Shield

Property Redress Scheme Membership details - The Property Ombudsman